●メニュープランに記載の下がり天井、梁型等の位置は施工上の都合、その他諸事情により変更となる場合がございますので予めご了承ください。 Ctype(メニュープラン)|間取り|【公式】ポレスター三山木駅前|京都府京田辺市の新築分譲マンション

Ctype(メニュープラン)|間取り|【公式】ポレスター三山木駅前|京都府京田辺市の新築分譲マンション

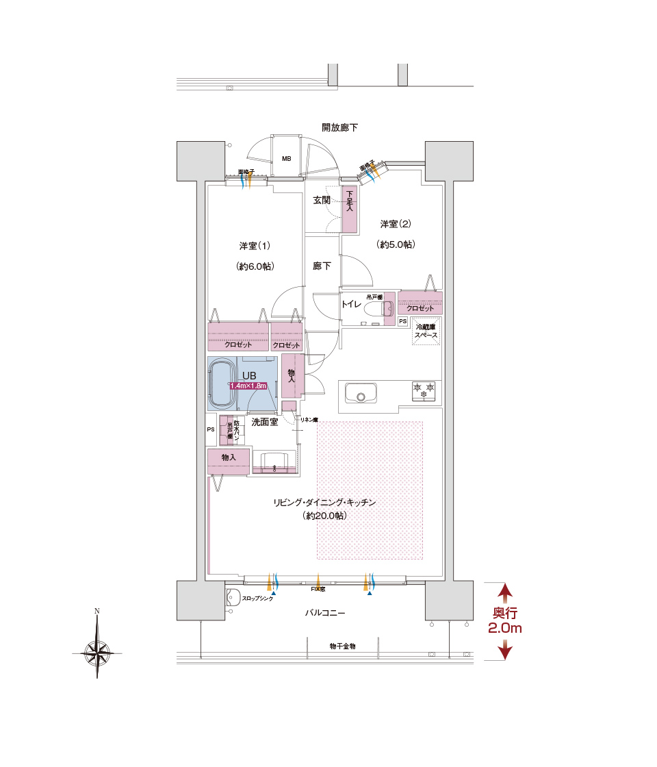
PLAN 間取り

image photo

Ctype

2LDK

専有面積 / 67.36㎡(約20.37坪)

バルコニー面積 / 12.80㎡

◎ 広さを重視した約20.0帖のリビング・ダイニング・キッチン

◎ リビング・ダイニング・キッチンに物入を設置

◎ 壁一面の収納を備えた洋室(1)

◎ 多目的に使えて便利なキッチン横の物入

Ctype(メニュープラン)

Ctype(メニュープラン)

※掲載の図面は計画段階のもので変更が生じる場合がございます。予めご了承ください。

※バルコニーの奥行は、壁の中心から手すり壁の中心までの寸法であり、実際に使用できる寸法とは異なります。

※無償オプションには期限がございます。詳しくは係員にお尋ねください。

MAP TEL 資料請求 来場予約 最新情報を
お届け