PLAN
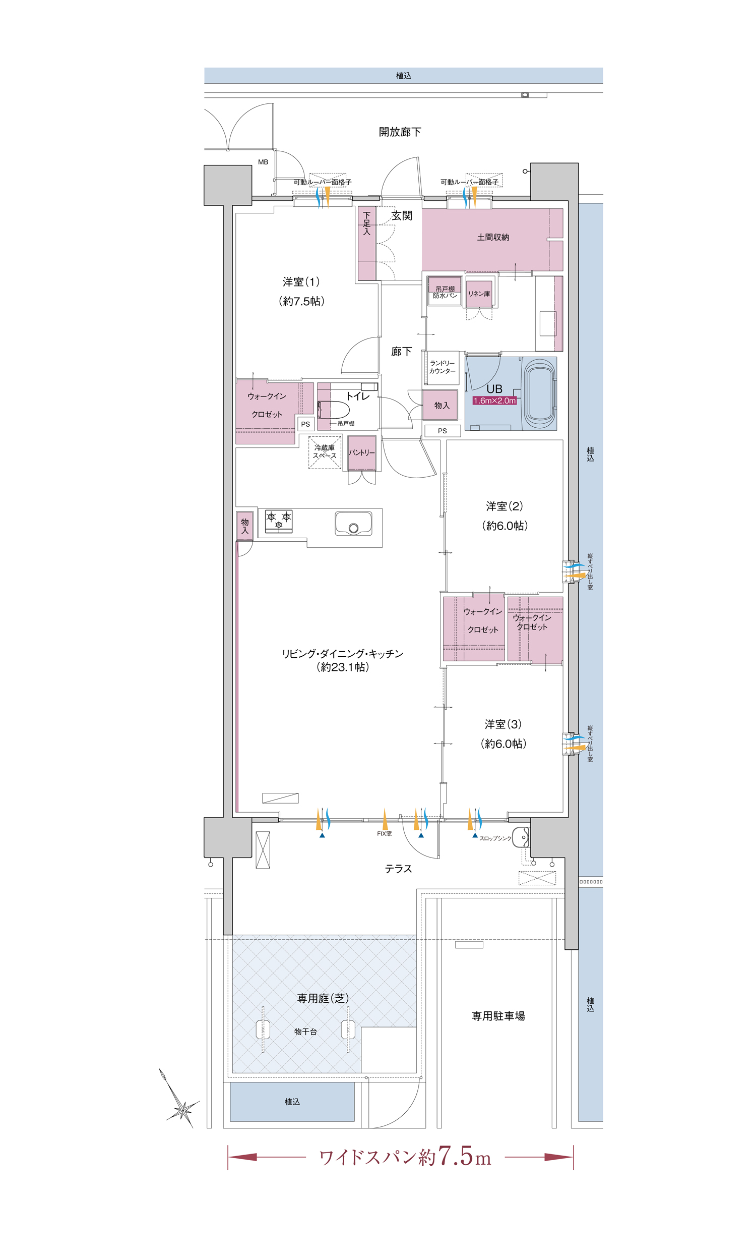
HGtype基本プラン

3LDK+ウォークインクロゼット×3+土間収納+パントリー
専有面積/101.25m²(30.62坪)
テラス面積/15.78m²
専用庭面積/13.02m²
テラス面積/15.78m²
専用庭面積/13.02m²
●通風・採光に優れた3面採光の角住戸
●自転車の持ち込みや台車や備蓄品の保管に便利な土間収納
●ウォークインクロゼットのある洋室(1)、(2)、(3)
●ゆったりとくつろげる1.6×2.0mのバスルーム
●戸建て感覚の専用庭と専用駐車場

通風
採光
収納
出入り可能窓
実装エアコン室内機位置(標準装備)
実装エアコン室外機位置(標準装備)
エアコン室外機想定位置
アクセントクロス(無償オプション)
※掲載の図面は計画段階のもので変更が生じる場合がございます。
※バルコニーの奥行は、壁の中心から手すり壁の中心までの寸法であり、実際に使用できる寸法とは異なります。
※バルコニーの形状は階によって異なりますので、詳しくはプラン集をご確認ください。
※無償オプションには期限がございます。詳しくは係員にお尋ねください。