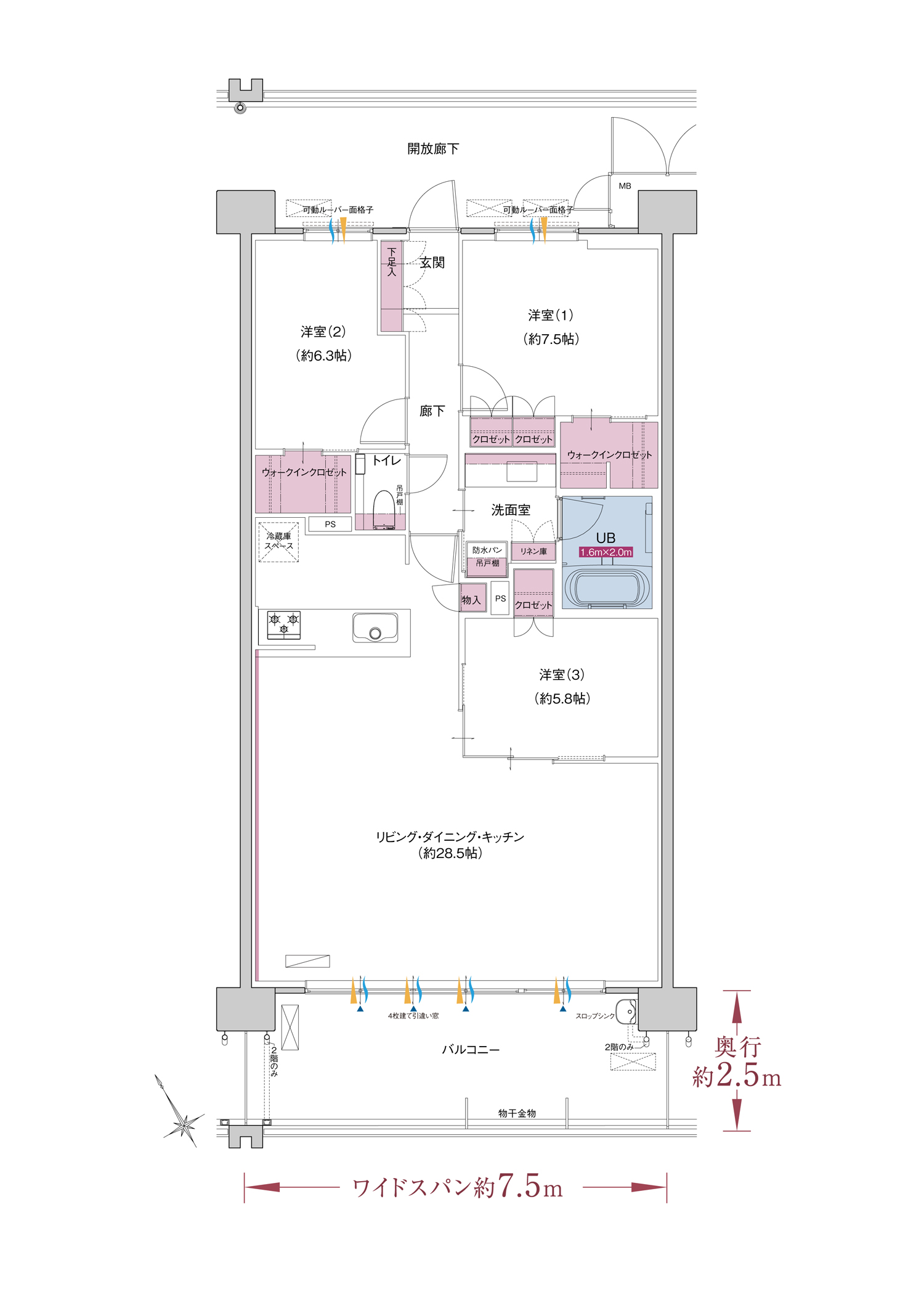
PLAN
E・EGtypeメニュープラン1

3LDK+ウォークインクロゼット×2
専有面積/101.25m²(30.62坪)
2~6階:バルコニー面積/18.75m²
1階:テラス面積/15.78m² 専用庭面積/13.02m²
2~6階:バルコニー面積/18.75m²
1階:テラス面積/15.78m² 専用庭面積/13.02m²
●広さを重視した約28.5帖のリビング・ダイニング・キッチン
●ウォークインクロゼットを備えた洋室(1)、(2)
●ゆったりとくつろげる1.6×2.0mのバスルーム

通風
採光
収納
出入り可能窓
実装エアコン室内機位置(標準装備)
実装エアコン室外機位置(標準装備)
エアコン室外機想定位置
アクセントクロス(無償オプション)
※掲載の図面は計画段階のもので変更が生じる場合がございます。
※バルコニーの奥行は、壁の中心から手すり壁の中心までの寸法であり、実際に使用できる寸法とは異なります。
※バルコニーの形状は階によって異なりますので、詳しくはプラン集をご確認ください。
※無償オプションには期限がございます。詳しくは係員にお尋ねください。